Skip to content
Free Shipping Orders $250+
Free Shipping Orders $250+
by M&W

Glass Panel Lift Beam 88"-144" 5,000 Lb Wll (22875)

Original price $2,594.72 - Original price $2,594.72
Original price
$2,594.72
$2,594.72 - $2,594.72
Current price $2,594.72
PN: M&W-22875

MPN: 22875

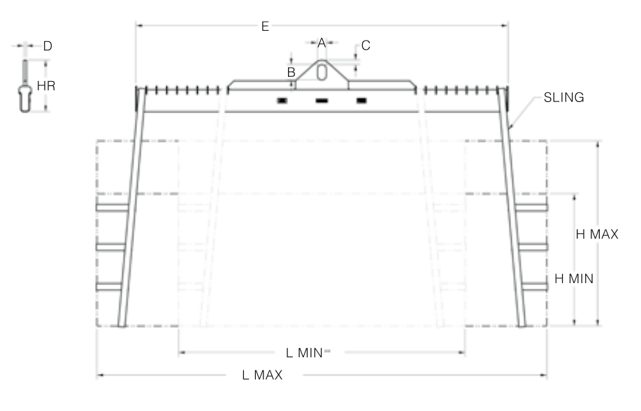
  • Part Number: 22875
  • Working Load Limit in Pounds*: 5,000
  • Panel Length (L) Min: 88"
  • Panel Length (L) Max: 144"
  • A: 3
  • B: 5
  • C: 1.25
  • D: 1
  • E: 109
  • HR: 15
  • Weight: 315 lbs